Prestations d’Architecture : État des lieux, Esquisses, Permis de Construire & Plans détaillés
Découvrez mes services de dessin d’architecture pour vos projets de construction, rénovation, extension ou aménagement intérieur en Ardèche (07), Drôme (26) et Haute-Loire (43).


État des lieux & relevés de bâtiments
Je prends toutes les mesures nécessaires pour reproduire fidèlement votre bâtiment.


Relevé précis sur site
Plans au propre
Les relevés sont mis au propre pour servir de base fiable à votre projet.
Esquisses & avant-projets (ESQ/APS)
Etude faisabilité
Implantation, circulation, volumes, lumière, optimisation des espaces
Plans 2D/3D pour visualiser le projet
Modélisations claires pour une première approche des volumes, de l'ambiance, et faciliter vos choix.




Plans réglementaires complets
Permis de construire, déclaration préalable & certificat d'urbanisme
Constitution du dossier administratif
Accompagnement jusqu’au dépôt du dossier en mairie.
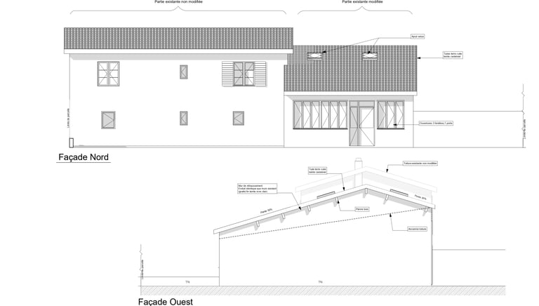
Plans de masse, coupes, façades, insertion paysagère
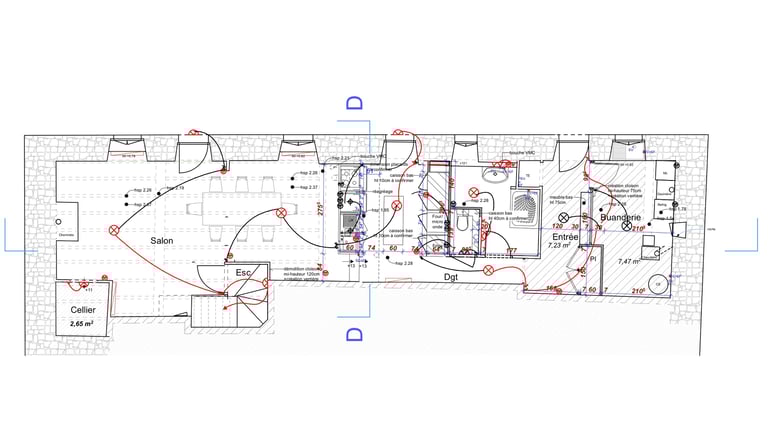
Plans détaillés & dossiers techniques de chantier
Documents précis pour les entreprises
Cotation détaillée, indication des matériaux, agencements, détails architecturaux pour devis artisans
Plans aux normes PMR et ERP
