Marie & Pierre

Réhabilitation d'une grange en habitation

Marie, originaire d’Ardèche, a choisi de revenir aux sources en acquérant une grange au cœur d’un petit hameau de pierre où vit encore une partie de sa famille. Chargée de souvenirs, la bâtisse méritait une nouvelle vie. Elle m’a confié la mission d’imaginer un aménagement respectueux de son histoire tout en révélant son potentiel.
L’ajout d’un niveau permet d’optimiser les volumes, tandis que de grandes ouvertures au sud apportent lumière et chaleur. La façade ouest se transforme également grâce à de larges baies traversant les deux étages, offrant un panorama privilégié sur le paysage ardéchois. À l’intérieur, la pierre apparente conserve toute son authenticité, mise en valeur par des pièces à taille humaine qui invitent au confort et à la douceur de vivre.

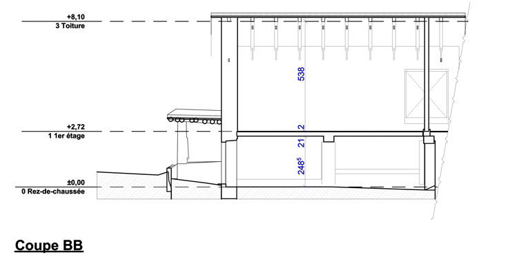
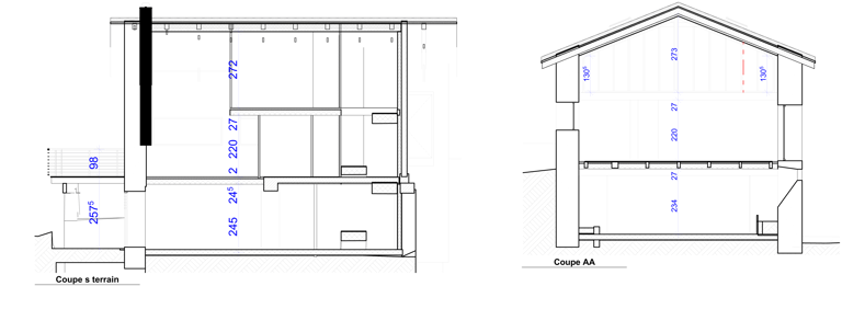
État des lieux : relevé d’une bâtisse ancienne en pierre

La grange présentait :

  • belle hauteur sous plafond,

  • une toiture et des murs en pierre sain,

  • un plancher intermédiaire détérioré.

Un relevé précis a été indispensable pour préparer le changement de destination.

Objectifs du couple :

  • conserver l’esprit authentique,

  • intégrer de larges ouvertures,

  • créer un espace de vie chaleureux,

  • ajouter une trémie

Les visuels ont permis de se projeter dans cette grange.

Esquisses & organisation des volumes

Travail sur :

  • la conformité au PLU,

  • gestion de l'assainissement individuelle:

    coordination avec l'entreprise d'étude de sol et le SPANC

Validation du projet & contraintes réglementaire

Permis de construire

Composition d’un dossier complet comprenant :

  • plan de masse et façades projetées,

  • insertion paysagère,

  • plan de coupe,

  • pièces administratives.