Florence et Stéphane
Rénovation d'une maison de famille
Florence et Stéphane sont tombés sous le charme de cette ancienne maison de pierre, chargée d’histoires. Ils l’ont choisie pour y bâtir leur refuge familiale pour se retrouver, partager, et tisser des souvenir.
Pour transformer cette demeure en un véritable cocon chaleureux, un lieu de convivialité et de vie, une rénovation fidèle à leur personnalité s’est imposée comme une évidence. »




Etat des lieux & relevé architectural


Pour cette maison située sur le plateau ardéchois, un relevé complet a été réalisé :
prise de cotes de l’existant,
analyse de la structure ancienne,
identification des contraintes (murs porteurs, ouvertures, réseaux).
Cette étape a permis d’obtenir une base fiable pour la future rénovation




Esquisses & propositions d’aménagement
Plusieurs scénarios ont été proposés :
ouverture des espaces pour une pièce de vie plus conviviale,
création d'un vestibule
création d'un WC indépendant
création d'une salle de bain à l'étage
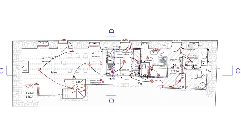
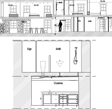
Plans détaillés pour les artisans






Conception :
plans d’exécution,
détails techniques,
cotations pour menuiseries, isolation, cloisons.






