Adrien & Marine
Projet de construction d'une maison
Adrien et Marine m’ont confié la conception de leur maison de 100 m², implantée sur un terrain en pente qui, loin d’être une contrainte, offre une vue remarquable et un environnement paisible au bord de la voie verte. Le projet s’adapte naturellement au relief pour limiter les terrassements et garantir un accès voiture pratique. Le volume en plain-pied s’intègre harmonieusement au site, tandis que les ouvertures verticales, orientées au nord, capturent la lumière et dévoilent pleinement le paysage.
Analyse du terrain & implantation
Le terrain situé dans un village proche de la vallée de l’Eyrieux présentait :
une pente accrue,
une vue dégagée orientiée nord/ouest,
une orientation parfaite pour bénéficier de la vue sans craindre la chaleur estivale
Une étude d’implantation a été réalisée pour tirer le meilleur parti du site




Esquisse de la future maison
Plusieurs critères étaient à prendre afin de concevoir l'aménagement:
une maison familiale optimisée,
une grande pièce de vie ouverte,
trois chambres et un bureau,
connexion intérieur / extérieur avec terrasse.
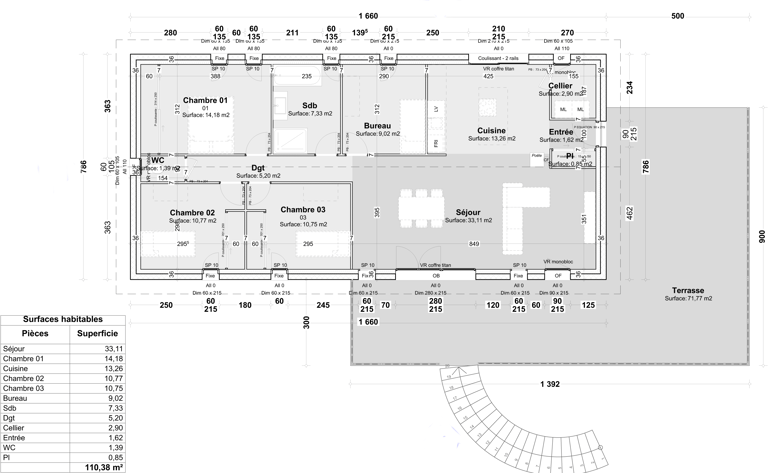
Plans détaillés








Réalisation de :
implantation sur le terrain,
plans côtés
plans de coupe
